所有核設施最終都會退役并拆除。在開始現場工作之前,可以通過開發全尺寸實體模型來模擬拆除核電站中大型部件(如反應堆壓力容器)的復雜任務。
1、實物模型測試

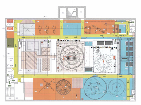
反應堆現場的預分割和后分割區域
所有核設施都將退役,也必須要準備拆除工作。
除了法律規定的最長運營期外,退役的其他原因可能有政治決策或經濟驅動因素。
在拆除核設施時,必須考慮技術和法規條件,遵守相關立法中規定的安全目標。在德國,就有相關的《輻射防護條例》和《輻射防護法》。
為了在退役期間盡可能經濟高效地工作,必須注意產生的二次廢物的類型和數量,以及所選技術的可靠性、所用工具的復雜性和相關的維護成本。
因此,理想情況下,在將機器和工具用于核電站之前,先在測試設施中進行測試。
這種在大型部件全尺寸模型上進行的測試被稱為實物模型。
由于在核設施的實際拆卸工作中進行維修可能有風險,甚至是不可能進行的,因此所有必要的工作步驟都首先在模擬設施中進行測試,類似于彩排。
實物模型測試有助于驗證功能,也可以支持不同流程的優化。
一個沒有輻射相關風險的測試設施可以簡化優化的實施。在模型上對設備進行細致的測試,也可以消除任何初始薄弱環節,并在設備到達反應堆現場之前確定最佳工藝參數。
這樣可以最大限度地降低項目延誤的風險,也意味著它能夠更好地處理拆除活動的緊迫期限。
拆卸過程詳細設計的核心要求包括,操作員提供的重量信息和放射性數據,以及批準的包裝概念。

RPV實物
可以利用開發過程模型優勢的一個領域是大型反應堆部件的退役,如反應堆壓力容器(RPV)。
這樣的元件通常是笨重的,并且不能作為單個部件移除。
此外,RPV攜帶嚴重的放射性危害。因此,他們保證開發一個全尺寸的實體模型,以便在現場工作開始前詳細探索工作流程。
2、拆卸RPV

RPV中的鉆孔裝置
RPV及其外圍部件的拆卸通常按順序進行。
拆卸過程本身分為兩個主要的子過程,稱為預分割和后分割。
這種劃分能夠實現并行工作,因此能夠更有效地全面執行任務。
預分割用于描述拆卸任務,這些任務是在部件仍處于原始裝配狀態時執行的。

專門為分割任務設計水池,已放入RPV(圖片:Javys)
相反,后分割包括所有切割過程,這些切割過程產生的分段大小適合于將要儲存的容器。
這些任務在單獨的沉箱中進行,在預分割中切割的大塊將被運輸到沉箱中進行進一步的工作。

使用帶鋸設備將壓力容器逐漸切割成段(圖片:Javys)
組件的前分割和后分割總是在不同的地方中進行。該程序減少了拆卸時間和相關人員成本,以及維護剩余操作的成本。
對實體模型設施中的設備進行徹底檢查,可以確保,當設備用于實際的現場拆卸活動時,它已經沒有任何初始缺陷,并確定了最佳工藝參數。
這使得可以通過最大限度地減少延誤風險來遵守嚴格的拆卸時間表。

RPV和外圍部件的拆卸通常分為三個主要階段:
RPV蓋的碎片;
RPV裙板的碎片,包括連接管道、控制棒驅動外殼管(CRD外殼管)和RPV小圓頂(RPV的球形底部)的分離;
拆除隔熱層。
拆卸過程從RPV環段在其安裝位置(原位)的預分割/切割開始。
隨后拆除RPV環段,然后將其放入適合放射性衰變的包裝中,或最終儲存在客戶提供的容器中。
3、初始狀態與最終狀態

德國Uniper Anlagenservice GmbH公司成為第一家在一年內同時完成兩個RPV拆卸、分割和包裝的公司。2021年12月,該公司成功完成了瑞典巴舍拜克核電站1號機組和德國Neckarwesteim核電站1號機組的拆卸工作。
對于所有正在退役的核電站,初始狀態假設如下:
RPV內部構件已被完全移除并從反應堆廠房中取出;
RPV已被凈化;
包括RPV在內的所有系統均已排空且無殘留物;
RPV蓋被放置在RPV法蘭上或已經被拆卸;
RPV的出口管道(給水、主蒸汽、反應堆水凈化系統等)是分離和密封的;
CRD外殼管已完全拆除并運走;
屏蔽條已被拆除和拆卸;
諸如裝載蓋之類的其他蓋已經被移除和拆卸;
反應堆廠房操作層上的儲存區域是可自由進入的;
反應堆廠房起重機已準備好運行;
加油機處于停車位置(如有必要,應拆卸加油機);
單個工作區域,如反應堆廠房操作層和CRD外殼管,在其初始狀態(放射性污染、石棉污染等)下進行記錄,并移交給客戶。

機器人切割RPV(圖源:Uniper)
RPV拆除和包裝后,RPV和反應堆廠房處于如下最終狀態:
根據批準的處置方法,將RPV部件從其安裝位置移除、拆卸并移交給客戶,
將承包商的設備,以及承包商使用的任何機器和裝置從拆卸區域移除(間隙測量和釋放由客戶進行;未清理的材料作為放射性廢物移交給客戶),
承包商為通風目的創建的任何附件或密封件已被承包商拆除并處理,
廢物容器和相關文件已經移交,
不需要最終處理包裝的其他部件,已根據現有要求進行包裝并移交給客戶,
根據客戶的要求,承包商通過欄桿隔離由此產生的空置區域(尤其是反應堆腔)。在施工階段,還應根據相關安全規定對欄桿進行固定。
與工作區域相關的任何其他要求和保障措施,都由客戶相應地制定和執行。

在控制室中監控切割過程
預分割
根據預分割設計和相關切割計劃,使用以下工作步驟拆除RPV:
水池密封的分段
分段是通過等離子切割系統和/或角磨機、鋸或類似工具進行的。
拆除每個環段的絕緣層
在預分段階段,使用屏蔽工作籠和所需的電桿工具(操作桿)現場手動拆除絕緣。
拆除的隔熱磚和金屬結構在單獨的位置再次分段,并分配到適當的處理路線,或以可裝入指定容器的方式進行包裝。
火焰切割起始孔標記
要進行熱切割,首先需要鉆出起始孔。在標記模塊的幫助下標記起始孔的位置,該標記模塊由提升梁的臂引導。
鉆起始孔

帶有標記模塊的提升梁,用于標記起始孔位置。
起始孔由專門開發的鉆孔設備鉆孔。鉆孔裝置從內部移動到外部。該過程是遠程進行的,并在控制室進行控制和監控。
切割環段

工作平臺
工具平臺(也稱為“工作平臺”)通過提升梁和反應堆廠房起重機定位在RPV環上,并使用火焰切割方法切割提升孔。
在最終的水平分離切割后,提升梁使用這些裝置來提升RPV環段。
為此,刀具平臺承載用于切割系統的引導系統,該引導系統用于遠程執行圓周分離切割。
RPV從上到下一段接一段地預先分段。該工具平臺還用于提取分離切割過程中產生的煙霧。
取出環段和小圓頂

通過提升梁移除切割件
最終切割后,將工具平臺移除并放置在存儲位置。然后在提升梁的幫助下提升環形段,并將其放置在預分割區域的清潔位置。對RPV環段的外部進行清潔,以去除任何可能的殘留物。
在預分割區域內,RPV的拆卸活動隨著卡座的拆除以及支撐框架和剩余控制驅動部件的后續拆除而完成。
在后分割區域中,進行RPV環的后分割成適合于封裝的分段。
4、后分割

RPV小圓頂到分割后區域的運輸。
分離的環段放置在反應堆廠房操作層或反應堆水池底部。分割后區域的位置主要取決于現場的可能性和條件以及由此產生的空間條件。
反應堆廠房起重機用于將RPV的切割環段運輸至后分割區域。
預分段設計確保RPV節段的最大重量,特別是RPV小圓頂的最大重量不超過反應堆廠房起重機的允許運行負載能力。
在后分割區域,開始將后分割為適合打包的較小片段。同時,開始了切割RPV下一個環段的準備工作。
分割設備包括一個旋轉切割臺和一個帶有氧乙炔炬的切割機器人。
包裝被放入客戶提供的包裝容器中。與預分割的情況一樣,在后分割區域的切割是通過熱切割技術遠程進行的。
在大型部件的傳統拆卸中,熱切割工藝是一種行之有效的切割技術。
在核設施中,通過局部抽氣系統和具有定向氣流通風和過濾的操作外殼來防止切割煙霧造成的污染擴散。排氣過濾器系統用于防止有害物質的擴散。
作為拆除過程的一部分,在后分割區域和反應堆腔附近都采取了定期的污染預防和清潔措施。
這些措施包括通過煙霧提取器提取,過濾煙霧微小顆粒,以及在技術可行的情況下,通過收集漏斗捕獲接近形成的礦渣顆粒。
此外,在每次分割活動之后,都會對受影響的區域進行清潔。分割后,再次清潔所有受影響的區域,以去除污染物。
盡管拆除設備事先在模型設施中進行了廣泛的測試,但在現場進行了改進。
5、經驗學習

第一段已切除,切割整個RPV花了14個月的時間(圖源:Javys)
NUKEM Technologies在過去24個月內成功拆卸和包裝了兩臺完整的RPV。
第三個RPV的第一個環已被切除并臨時存放,以便進一步拆卸。該設備目前正被轉移到另一個地點,這個地點計劃在未來幾個月內拆除另外兩個壓力容器。
盡管這些反應堆并不相同,但不同的項目團隊之間會定期交流,以分享研究結果。
通過以往項目的經驗,可以減少拆卸時間并降低相關成本。
目標是節省成本和時間,并提高工作的整體質量。在項目中,施工現場和工程部門也在經驗教訓會議上交流經驗,以便盡早在規劃和設計階段將這些發現納入后續項目。
此外,由于現場使用了拆卸設備,因此進行了進一步的修改和改進。
即使在大規模的實體模型測試階段,也總是有一些問題未被發現。其中一個原因是很難在現場實現相同的條件復制。設備還必須適應現場的結構條件,這通常與可用的設計文件不同。
因此,找到了切實可行的解決方案,確保在以下反應堆拆卸項目的拆卸過程中,工藝的安全性大大提高,并縮短了操作時間。
例如,第二個RPV的拆卸時間可以減半至六個月,再加上設備的組裝和拆卸。
由于施工現場的人員成本較低,切割時間的減少帶來了顯著的成本節約。
此外,由于反應堆廠房可以提前空出來,用于進一步的活動,因此客戶可以根據具體情況從更短的拆卸時間中獲得收益。
免責聲明:本網轉載自合作媒體、機構或其他網站的信息,登載此文出于傳遞更多信息之目的,并不意味著贊同其觀點或證實其內容的真實性。本網所有信息僅供參考,不做交易和服務的根據。本網內容如有侵權或其它問題請及時告之,本網將及時修改或刪除。凡以任何方式登錄本網站或直接、間接使用本網站資料者,視為自愿接受本網站聲明的約束。

