中國廣核集團堅決貫徹落實黨中央決策部署,堅決扛起推進鄉村振興重大政治責任,進駐陽江市東平鎮開展駐鎮幫鎮扶村工作,選派第一書記駐陽江市東平鎮允泊村開展駐村幫扶。一年多來,中國廣核集團秉承“共建、共生、共享”理念,在東平鎮委、鎮政府大力支持下,聚焦“五個提升”主要任務,扎實推進允泊村全面振興,著力打造鄉村振興示范樣板村。
“一村企”:陽江允興環保工程有限公司激活鄉村振興內生動力
中國廣核集團堅持因地制宜原則,充分利用毗鄰下屬陽江核電基地以及擁有相當數量的閑置勞動力等綜合優勢,與陽江核電有限公司開展村企共建。幫扶創辦村集體企業“陽江允興環保工程有限公司”,承接陽江核電基地廠外道路清潔業務。2022年首年運營即實現營收130余萬元,為村集體增加收入近50萬元,8名村民(村集體公司員工)每人增加收入近4萬元。有效激活了允泊村村民參與鄉村振興的內生動力,走出了獨具允泊特色的強村固基富民路。
▲2022年2月15日,8名員工與中國廣核集團幫扶創辦的陽江允興環保工程有限公司簽訂集體勞動合同“一驛站”:鄉村振興人才驛站,開展訂單式人才培養和就業幫扶
中國廣核集團充分發揮自身人才培養和資源優勢,幫扶允泊村建設鄉村振興人才驛站,開展訂單式人才培訓,并對接陽江核電基地合作伙伴單位幫扶解決村民就業,激活鄉村振興“人才引擎”。一方面開展兩期“廣東技工”(低壓電工取證)培訓,58名村民考取低壓電工證。中國廣核集團通過舉辦專場招聘會,幫助30余人在陽江核電合作伙伴單位實現就業。另一方面開展黑骨茶盆景產業培訓會,由園藝盆景專家通過“線上+線下”的方式為黑骨茶盆景種植戶答疑解惑、傳授經驗。通過訂單式人才培養,幫助村民解決就業,形成人才培養與穩崗就業高效融合的人才振興模式,為鄉村振興注入人才活力。
▲2022年6月14日,東平鎮允泊村鄉村振興人才驛站揭牌暨“廣東技工”培訓班開班儀式舉行“一展館”:黑骨茶盆景展銷館,做好做足“土特產”文章
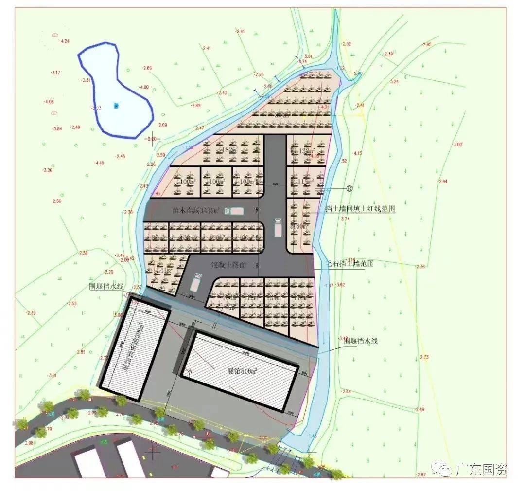
允泊村堅持“黨建+產業”的工作思路,在黨員中心戶的帶領下,允泊村黑骨茶盆景產業已規模化。為進一步做好做足黑骨茶盆景“土特產”文章,提升黑骨茶盆景市場占有率和品牌影響力,中國廣核集團統籌資源,積極謀劃建設集觀賞、展示、銷售功能于一體的黑骨茶盆景展銷館,因地制宜發展特色產業,擦亮黑骨茶盆景特色產業“名片”。黑骨茶盆景展銷館總投入320萬元,建設包括510㎡主題展館及6000㎡戶外賣場,同時拓展黑骨茶盆景產品直播帶貨功能,在集中展示黨建引領產業發展成效、打造允泊特色產業品牌等方面具有重要意義。
▲黑骨茶盆景展銷館規劃圖“一項目”:海產品深加工合作項目,發展壯大村集體經濟
允泊村毗鄰南海,漁業資源豐富。為推進海產品精深加工、延長海產品加工產業鏈,中國廣核集團積極謀劃海產品深加工合作項目,通過“陽江核電+村(漁)委會+水產企業”的合作方式,協調東平鎮16個村(漁)委會以集體經濟方式入股企業,共同出資600萬與水產公司簽署合作協議,并承租允泊村集體土地進行廠房及配套設施建設,探索村集體經濟發展新路徑。該項目總投資3600萬元,水產企業負責項目具體的建設、生產、管理和銷售等工作。項目投產后預計提供30個就業崗位,每年可增加村集體收入50萬元。
▲海產品深加工合作項目效果圖“一民宿”:中國鄉村發展基金會百美村莊,打造鄉村振興綜合示范村
中國廣核集團充分發揮自身資源優勢,牽頭將中國鄉村發展基金會“百美村莊”項目引入陽江市陽東區。在陽東區委、區政府的大力支持和中國廣核集團、中國鄉村發展基金會的共同推進下,允泊村允安自然村成為廣東省首條百美村莊鄉村振興綜合示范村。該項目擬投入3000余萬元,通過整體規劃和專業設計,對允安自然村傳統村莊、舊民居進行內部改造,對村莊和周邊生態環境進行維護整治,以特色民宿切入促進鄉村農文旅產業融合發展。同時,依托村兩委和合作社進行民主協商,構建以合作社為載體,實現成員共享、利益聯結的收益分配機制,實施積分管理,開展鄉村文明建設,最終將允泊村打造成一個產業強、生態美、文化興、機制活、百姓富的鄉村振興綜合示范村。
▲中國鄉村發展基金會百美村莊項目選址地——允泊村允安自然村

